L'armature d'un pavillon est différente d'un plancher .Normal ce ne sont pas les mêmes éléments.
Quels sont les aciers d'un pavillon ?
Un pavillons est composé de :
Semelle
Poteau
Poutre
Chainage verticaux chaînage horizontaux et chainage en rampannage (pour les murs pignons)
balcon
Et tous ces élements se dimensionnent à l'aide de différents ouvrages BAEL , eurocode etc ...
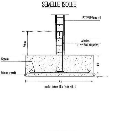
Exemple de semelle isolée
exemple de semelle filante

Exemple de poutre en béton armé


