Introduction : Une checklist spécialisée sur la conception d’une structure béton armée pour toute personne souhaitant vérifier son bâtiment sans partir dans des calculs ultra complexes .Ce check ne couvre pas tous les cas (surtout les cas particuliers ou difficiles) mais il couvre les cas les plus courants .Alors oui c’est long mais dans le bâtiment , il y a des phénomènes physiques à l’oeuvre un peu partout .Pour les points techniques importants que je n’aurais pas traités , les commentaires constructifs dans le blog sont là pour cela . Je me ferais une joie de compléter cet article de vos points de vue.
A savoir qu’une conception de structure répond aux mêmes critères généraux que la conception d’un plancher cad :
1/La catégorie d’importance du projet
2/Les charges
3/Le thermique
4/Le sismique
5/Le phonique
6/Le coupe feu
Pour un check sur la conception d’un plancher poutrelles entrevous , je vous laisse revisiter le site …
Alors pour la conception d’une structure de base voici quelques questions clés à vous poser .C’est partis !
Êtes-vous en zone sismique ou pas ?
http://www.planseisme.fr/Zonage-sismique-de-la-France.html
Etes-vous en zone inondable ou pas ?
conseil consulter les plans de prévention à votre mairie . Ou bien posez leur directement la question . Demandez à consulter le PPRI plan de prévention des risques et des inondations.
N'oubliez pas de prévoir des drains .
Lisez votre étude de sol ... Etes-vous proche d'une rivière ou bien d'une nappe phréatique ?
Etes-vous proche d’un barrage et d’une digue ?
Ce sont des questions fondamentales et de bon sens à se poser avant de faire quoi que ce soit .
Faites aussi un saut sur le site internet ci dessous ...
http://www.inondationsnappes.fr/
Que dit votre étude de sol ?
avez-vous de l'argile verte sur votre terrain dans les couches de la terre ?
si oui fuyez !
https://www.youtube.com/watch?v=cvs_T2_UqJU
Pour les casse-cous qui n’ont même pas peur, prévoir une section béton de 50 par 50 cm minimum de vos semelles filantes .Et renforcer vos murs de soubassement avec des chainages verticaux espacés tous les 1.50 ml y compris sur le mur de refend si il s'agit d'un VS < 80 cm de haut (si il s'agit d'un sous sol ce sera une autre solution technique probablement du bloc à bancher) . Et ajouter des drains , les fondations ne doivent en aucun cas macérer dans une argile imbibée d'eau .En fait , les drains servent à réguler le niveau d'humidité de l'argile qui doit être ni trop humide , ni trop sec .Autrement dit oubliez , vos drains et le phénomène de dessiccation de l'argile se déclenchera et les fissures qui vont avec .A noter que vos évacuations des eaux pluviales devront toujours être fonctionnels et rejeter loin des fondations .(Quand les gouttières sont bouchées , les eaux pluviales viendront imbibées l'argile près des fondations donc à éviter absolument)
Peut-on mettre un radier sur un sol en argile verte ?
Non! Car l'argile verte ou l'argile marron nécessite de laisser un vide entre le sol et le dallage pour laisser la terre se gonfler et se dégonfler .Or un radier est en contact direct avec la terre . donc la terre ne respire en plus il va y avoir des zones d’argiles qui vont être humides et d'autres qui vont sécher et cela va créer des différentiels qui amèneront des fissures .
Ce phénomène de retrait gonflement pour les argiles s'appelle la dessiccation . Ce phénomène physique est à éviter absolument pour votre bâtiment .
NB : pour un amateur pas besoin de savoir tout lire dans une étude de sol , c’est normal que vous ne compreniez pas tout . En revanche , vous pouvez sauter directement aux conclusions du rapport de sol . Ce sont elles qui indiquent les préconisations techniques .
Avez-vous de l'argile marron?
si oui prévoir la technique de la poutre échelle dans les murs de soubassement avec des chaînage verticaux en quatre filants .
Votre terrain est-il en pente ?
Dans ce cas faites attention à l'effet de pente c'est-à-dire qu'un terrain incliné augmentera les forces qui s'applique sur les murs de soubassement . Ces forces sont la poussée des terres et la poussée de l'eau qui dévale la pente .La terre et surtout l’eau viennent s'accumuler le long des murs de soubassement . Ces murs enterrés doivent être renforcés en resserrant les chaînages verticaux en 4 filants (Tous les 2.50 ml ) + chaînage intermédiaire (voir technique de la poutre échelle )+ prévoir un drain .
Avez-vous des fondations mitoyenne ou en limite de propriété ?
si oui alors deux solutions :
première solution: vous augmentez l'épaisseur de la semelle jusqu'à 45 cm pour la raidir .
c'est la solution la plus facile
deuxième solution : vous mettez du bloc à bancher tout le long de la limite de propriété avec une semelle classique de 25 cm de hauteur . c'est le bloc à bancher qui aidera à raidir la semelle filante .Le fait de mettre du bloc à bancher en soubassement porte le terme technique de murs de libage . On dit plus simplement , un mur de libage c'est un mur de soubassement que l'on a renforcé peu importe comment ...Ici c’est du bloc à bancher mais cela pourrait être une autre méthode de renforcement .
Attention si la descente de charge sur la semelle excentrée est supérieur à 3,5 tonnes alors physiquement elle risque de basculer .
en résumé : deux méthodes pour raidir une semelle filante , soit :
- on en augmente son épaisseur ,
- soit on met du bloc à bancher au-dessus d'elle .Si la descente de charge est supérieur à 3,5 tonnes alors voir la solution de technique avec votre ingénieur structure .
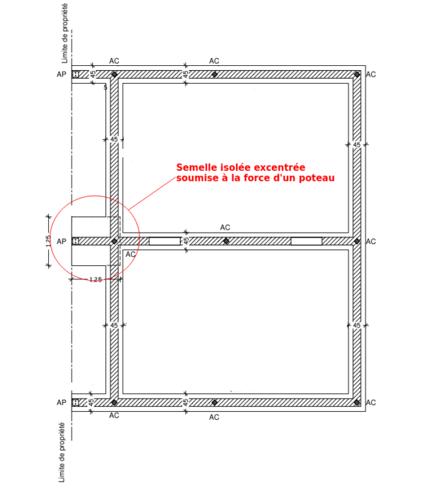
Comment empêcher une semelle isolée excentrée de basculer si elle est soumise à une force > 3.50 Tonnes ?
sans entrer dans les détails de calcul complexe une solution de bon sens et de mettre un mur de contrepoids
exemple:
Avez-vous des fondations avec des décalages de niveaux ?
Alors je vous laisse faire un saut ici
et ici
https://www.leplancherpoutrelleshourdispourlesnuls.com/faq/comment-parer-au-risque-de-glissement/
Avez-vous une façade supérieure à 20 mètres linéaires ?
Prévoir un joint de dilatation dans la façade
Avez-vous un ou plusieurs trumeaux dans la structure de votre bâtiment ?
si oui alors mettre au minimum un poteau béton armé de 15 par 15 ans section béton dans un bloc poteau . c'est la solution la plus courante mais il en existe d'autres solutions quand la configuration du trumeau est particulière .
Sur votre projet avez-vous des acrotères ?
alors déterminer le type des acrotères 2 solutions
2/ Où est-ce un acrotère bas ?
Avez-vous un mur avec une hauteur supérieure à 3 m sans chaînage horizontal intermédiaire ?
Alors l'épaisseur de votre mur devra être de 25 cm minimum ( et pas 20 cm)
Dans les éléments béton de votre maison savez-vous où sont les parties du béton en traction ?
si oui alors vérifier que des aciers supplémentaire ont été prévus dans ses zones
Quel DTU doit-on lire pour concevoir sa maison individuelle ?
c'est le DTU 20 - 1
Votre projet est-il pour du collectif ?
alors il faut se soucier des transmissions phoniques afin que les voisins évite de se disputer entre eux .
Pour les murs séparatifs entre deux appartements différents, il faudra prévoir des parpaings pleins ou bien du béton plein (par exemple dans les cages d'escalier).
Pour les solutions phoniques concernant le plancher je vous laisse regarder sur le site internet les solutions y sont .
Des bandes de capillarité ont-elle été prévues sur les murs de soubassements ?
C'est important pour éviter les remontée d'eau dans les murs surtout si vous n'êtes pas loin d'une nappe phréatique .
Alors le minimum c’est une bande d’arase en tête de mur de votre VS + noir bitumineux sur la surface extérieure de vos murs de soubassement .(Mais , il existe d’autre solution comme un mortier hydrofuge ou des feutres bitumineux)
Ci dessous quelques vidéos valant mieux qu’un long discours .
https://www.youtube.com/watch?v=WmjA8u8CbJ8
https://www.youtube.com/watch?v=X3ZAyqEyhz4
Les appuis de vos poutres sont-ils supérieur à 8 tonnes ?
Si oui , alors prévoir des poteaux Et une semelle isolée sous le poteau
L'enduit a-t-il été renforcée en treillis de verre ou en treillis d'armature aux appuis des poutres ?
- si ce n'est pas le cas cela provoquera des micro-fissures d'ici quelques années .Ce n’est pas grave mais du point de vue esthétique pour les tatillons , c’est bof ...
- si la fissure est carrément transversante alors c'est une faute de calcul de l'ingénieur .Les aciers ont été mal dimensionnés .
Ci-dessous trois questions à se poser pour ceux qui sont un peu plus technique
où s'exercent les moments fléchissants ?
où s'exercent les moments basculants ?
où s'exercent les efforts tranchants ?
Le principe de recouvrement des armatures est-il respecté ?
Ce principe énonce que un élément d’armature doit se recouvrir avec son élément d’armature voisin d’au moins 50 fois le diamètre .
Cela concerne tous les éléments d’armatures que ce soit les poutres , les treillis soudé , les chainage verticaux , les chainage horizontaux , les équerres , les attentes , les semelles filantes ,les poteaux , les chapeaux
Pour avoir cette longueur de recouvrement , il suffit de mesure le diamètre le plus epais d’une armature sur le chantier .
Ex 10 mm de diamètre donc le recouvrement entre 2 pièces d’armature sera de 10 mm *50 = 500 mm = 50 cm minimum .
Ces recouvrements peuvent s’effectuer entre 2 éléments de même nature
(ex 2 chaînages horizontaux ou 2 treillis soudés ou 2 chainages verticaux)
et entre 2 éléments de nature différentes (ex : une attente et un chaînage vertical ou une poutre et un chaînage vertical ou une équerre et une semelle filante ou une équerre est un chaînage horizontal .)
L’image grossière à se faire est que :
grosso modo toutes les armatures doivent être en continues et si vous mettez du courant électrique sur une armature le courant électrique doit pouvoir passer .(Pas de rupture dans les fils)
Combien de temps faut-il maintenir des étais sur le chantier ?
28 jours , c'est le temps pour que le béton appelle sa résidence maxi de 25 MPa .
NB : Pourquoi il ne faut pas faire l'impasse sur cette règle ? et bien si vous enlevez trop tôt les étais et que vous chargez par exemple votre plancher de palettes , la dalle risque de fissurer .
Quelles sont les règles constructives pour les appuis d’une poutre ?
Deux cas possibles :
1/ la poutre appuie sur des blocs maçonnés
2/ la poutre appuie sur des murs en béton armé
- Premier cas : prévoir 25 cm depuis de chaque côté
- deuxième cas prévoir 20 cm depuis de chaque côté
1.1/ que faire si je n'ai pas assez de place pour avoir 25 centimètres d’appuis sur un bloc maconné?
dans ce cas , la solution technique c'est de faire un sommier en béton armé .(on dit aussi asselet)
C'est un cas très courant , sur les chantiers quand la poutre est perpendiculaire à un mur . pourtant ce point technique est maltraité parfois et le constructeur omet de faire un sommier . il se contente de seulement 15 cm depuis de sa poutre sur le mur .


1.1.1/ et que faire si je n'ai ni la place pour 25 cm depuis ni la place pour un sommier en béton armé?
dans ce cas la dernière solution est de mettre un poteau
En résumé si vous n'avez pas 25 cm d’appuis alors prévoir un sommier BA et si vous ne pouvez pas mettre de sommier BA et bien prévoir un poteau ça c'est pour le raisonnement exact .
Est-ce qu'il y a des coffres de volet roulant intégré dans le mur ?
Si oui , est-ce qu'il y a suffisamment d'appui pour les poutres sachant qu'un appui de poutre c'est 25 cm minimum .
Attention pour la longueur de la poutre ne pas prendre la largeur brute de la baie vitrée + 2 x 0,25 d’appuis mais prendre la longueur brut du coffre de volet roulant + 2 x 0,25 . (Rappel 2x .25 car il y a toujours 2 appuis à une poutre .En effet il faut s'assurer que la poutre passe bien par-dessus le coffre de volet roulant . je précise tout ceci parce que c'est une erreur courante pratiquée sur les chantiers de maison individuelle .
Est-ce que je conseille ce type de produits que sont les coffre de volet roulant intégréS dans les murs ?
Et bien non parce qu'ils sont sujets erreur , à la fois lors de la conception , du calcul et lors de la pose (voir génère des fautes de structure grave) .
Pour ce type de produit nous rencontrons quatre difficultés .
la première j'en ai parlé ci-dessus c'est-à-dire qu'il faut passer par-dessus la longueur du coffre de volet roulant. Donc , il y a un problème dans le sens de la longueur de la poutre .
La deuxième difficulté c'est qu'il y a un problème souvent dans le sens de la hauteur de la poutre .
C'est-à-dire qu'il y a des chances pour que la poutre n'aie plus assez de place et sois obligé de venir s'intégrer dans le plancher . Quelquefois il y a aussi du problème de niveau et c'est carrément le plancher qui va venir taper dans le coffre de volet roulant .
Dans ce cas , il faudra vérifier prévoir des chevêtres devant le coffre de volet roulant .
la solution c'est de vérifier c'est hauteur sous plafond et voir si tous les éléments peuvent s'installer sans problème donc il faut faire son plan de pose .
Le 3ème écueil: pour ce type de produit , le client final est tenté souvent d'élargir ses ouvertures surtout si il s'agit de baies vitrées sans avertir l'ingénieur structure . résultat le maçon réduira souvent la largeur des poteaux d’appuis . ce qui fragilise la structure d'ensemble et génère un risque de ruine du bâtiment .
Le 4 ème écueil , c’est le respect de la hauteur d’égout ,En effet , souvent chaque mairie a conçu un PLU (plan local d’urbanisme) dedans figure régulièrement des clauses de respect de la hauteur d’égout .
Or en intégrant un volet roulant dans le mur , vous ajoutez de la hauteur à votre projet parce qu’après on ajoute un poutre , un bloc , un plancher etc (chaque cas est particulier) .Et quelquefois en additionnant tous les éléments constructifs on s’aperçoit que la hauteur d’égout n’est plus respectée .
Et si vous respectez la hauteur d’égout en enlevant la poutre , le linteaux ou la poutre en croyant qu’un bloc “U” suffira et bien vous risquez de ne pas respecter la descente de charge .Autrement dit avec un coffre de volet roulant intégré , vous avec une double contrainte à respecter
- une contrainte de hauteur , la hauteur d'égout
- une contrainte de résistance mécanique (descente de charge, cela ne doit pas fissurer)
Si vos calculs indiquent que la hauteur d'égout est dépassée ou que les éléments BA ne peuvent résister alors je vous conseille d’enlever votre volet roulant intégré . Après avoir avertis votre client bien sûr du problème que vous rencontrez .
NB : ce principe de respect de la hauteur d’égout et de résistance mécanique sont valables aussi même sans volet roulant . Checkez donc que cela passe en dessinant une coupe du plan de pose .
Exemple en vidéo :
https://www.leroymerlin.fr/v3/p/campus/comment-poser-un-coffre-demi-linteau-l1308223489
Alors c’est bien cette vidéo mais ne croyez pas qu’un simple bloc “U” avec un chaînage 2 filants suffira toujours pour reprendre la descente de charge .Quelque fois , ce sera une poutre à la place , quelques fois cela ne sera pas possible ...
Avez-vous de grandes baies vitrées cote à cote dans votre projet ?
Alors vérifier la largeur des poteaux et éviter les volets roulants intégrés . Ne modifiez pas la largeur des baies sans avertir votre ingénieur de structure . Autre point à vérifier , êtes-vous en zone sismique >=3 ? si oui alors attention les contreventements sont réglementées autrement dit plus plus il y a de baies vitrées les unes à côté des autres , plus vous fragilisez votre structure . et en cas de secousses , l'ensemble de la structure risque d'être par terre .Parlez-en à votre ingénieur structure et pas à votre architecte car si l’un a un objectif d’esthétisme , l’autre à un objectif de faisabilité .
Comment traiter les petits morceaux de mur inférieur à 30 cm avec un joint de dilatation ? (sachant que le joint de dilatation empêche la répartition des charges dans le harpage)
réponse: Il faut mettre un poteau 15x15 cm dans un bloc poteau ou bien coffrer un poteau section béton 20x20 cm
Remarque : les joints de dilatation sont souvent rencontrés lorsque l'on veut faire construire un garage accolé à son bâtiment .Cependant le joint de dilatation n'est pas indispensable si la façade du bâtiment est inférieur à 20 mètres linéaires .
Faut-il mettre un chaînage vertical en tête de mur ?
Oui d’une manière générale dans la plupart des cas .
Non dans les cas particuliers ci dessous :
1/ si la tête de mur reçoit une charge supérieure à 8 tonnes alors c'est poteau béton .
2/si la tête de mur est inférieure à 25 cm et que le harpage permet de répartir les charges jusqu'au chaînage vertical d'à côté .
NB : le harpage , c’est le fait d’assembler les blocs en les décalants de plus de 30 cm .(les joints verticaux ne sont pas alignés). Si il n'y a pas de harpage alors la répartition des charges ne se fait pas et donc là c’est chaînage vertical .
3/ Il y a un trumeau qui nécessite la présence d’un poteau
La hauteur de votre pignon est-elle supérieure à 3 m ?
si oui alors prévoir un chaînage horizontal à 2 m 50 de hauteur minimum
****************************************************************************************************
****************************************************************************************************
****************************************************************************************************
Une fois n’est pas coutume mais quelques petites question financières à se poser avant de commencer son projet . Donc nous sortons du cadre de la technique
Mon terrain est-il viabilisé ou pas ?
Si il est non viabilisé attentions aux surcoûts de viabilisation .
Quels sont les taxes applicables mon terrain ?
Pour le savoir faites une demande de certificat d’urbanisme opérationnel
Maintenant à vous chers lecteurs , quels points structurels vérifierez vous ?




















Fondation extension (mitoyen)
Bjr un grand merci pour votre site internet ! J'ai un projet d'extension et surélévation sur partie existante et nouvelle. Zone sismicité faible, HG 50cm, sol sable/limons noirs, pas argile.
J'ai bien compris le principe des semelles filantes perpendiculaires à l'existant: faut-il ensuite placer des poutres (servant de soubassement) qui relient aux semelles ?
La semelle isolée et excentrée ? Sur le dessin elle communique avec la semelle filante et centrée !
Faut-il mette qu'une seule comme sur le dessin ? Ou à chaque extrémité des semelles filantes côté mitoyen ?
Mon terrain est légèrement en pente 20/30 cm de la terminaison des semelles du côté opposé. Dois-je effectuer une fondation en redan 1.25m à partir de la mitoyenneté pour être à la bonne profondeur pour la partie restante des semelles? Car je garde la même profondeur des fondations existantes (50cm actuellement) je risque d'être à peine 20/30 cm du sol naturel (pas bon).
Enfin y a t-il une petite tolérance de différentielle entre deux fondations ( 5/10/15 cm) ?
Bien à vous
Bonjour , je vous aie envoyé un mail merci de me communiquer vos plans parce que j'aie l'impression votre projet est différent de celui que j'expose .J'expose ce que l'on appelle "une banquette" dans le jargon pour un projet neuf dont un mur est en limite de propriété et vous vous avez un projet d'extension sur de l'existant + une partie de l'extension neuve en limite de propriété.Il y a peut être d'autres solutions techniques à proposer .
J'ai bien compris le principe des semelles filantes perpendiculaires à l'existant: faut-il ensuite placer des poutres (servant de soubassement) qui relient aux semelles ?
Oui , mais elles appuieront sur le poteaux et les murs de soubassement pas sur les semelles filantes .
La semelle isolée et excentrée ? Sur le dessin elle communique avec la semelle filante et centrée !
Faut-il mette qu'une seule comme sur le dessin ? Elle est excentrée par rapport à la limite de propriété .
Si elle était centrée les murs seraient au milieu des 1.25
Ou à chaque extrémité des semelles filantes côté mitoyen ? C'est possible mais pas obligatoire , j'aie besoin
de voir vos plans pour répondre exactement .
Mon terrain est légèrement en pente 20/30 cm de la terminaison des semelles du côté opposé. Dois-je effectuer une fondation en redan 1.25m à partir de la mitoyenneté pour être à la bonne profondeur pour la partie restante des semelles?
Car je garde la même profondeur des fondations existantes (50cm actuellement) je risque d'être à peine 20/30 cm du sol naturel (pas bon).
Vous avez peut-être besoin d'un redans mais pas à 1.25 ml . La coupure d'un redans se détermine en fonction du degré de la pente du terrain.J'aie besoin d'élement pour calculer ce dégré .
POur votre redans , observer le schéma dans le lien ci dessous ; vous verrez que le décalage ne se fait pas forcement à 1.25 ml .
https://www.abc-maconnerie.com/technique/conseil/ouvrages-enterrees/semelle-filante-redan
Enfin y a t-il une petite tolérance de différentielle entre deux fondations ( 5/10/15 cm) ?
Si vous avez besoin d'un différentiel , vous devez pratiquer un redans avec des fondations de 25 cm d'épaisseur .
Dans un redans vous glisser une semelle 50 cm en dessous d'une deuxième semelles .Or elles font 25 cm d'épaisseur (en général) donc vous faites un différentiel de 25 cm . Cela tombe bien puisque vous avez un dénivellement de 20-30 cm .Un différentiel de 5 cm est acceptable mais pas lus .
Je remet le lien avec un bon schéma explicatif .
https://www.abc-maconnerie.com/technique/conseil/ouvrages-enterrees/semelle-filante-redan